Beverly Hills
Civil Engineering and Grading Plans in Beverly Hills
Beverly Hills has its own Building and Safety department with requirements that differ from surrounding LA County areas. One unique aspect: you cannot drain to alleys. Stormwater must go to the street curb, either by gravity or via pump system.
We have completed projects throughout Beverly Hills, from hillside grading plans to drainage for new home construction. We understand how Beverly Hills Building and Safety reviews projects and what documentation they require.
Beverly Hills Building and Safety
Unlike LA County, Beverly Hills has its own Building and Safety department. Projects require city permits separate from county. We know how to put together plans that meet Beverly Hills standards and move through the approval process efficiently.
Drainage to the Street (No Alley Drainage)
A key difference in Beverly Hills: you cannot drain to alleys. All stormwater must discharge to the street curb. Depending on your site grades, this means either a gravity pipe system that sheet flows to the street, or collecting roughly half the site stormwater in a sump pump and pumping to the curb. We design both approaches based on what works for your specific site.
Hillside and Flat Lot Experience
Beverly Hills has distinct terrain. The hillside properties above Sunset and Mulholland require careful grading and drainage engineering. The flat lots have their own challenges with stormwater management and meeting the city requirement to drain to the street. We work on both.
Permitting Authority
Beverly Hills Building and SafetyWhy Work With B+W Engineering in Beverly Hills?
- We have completed projects throughout Beverly Hills
- We know Beverly Hills Building and Safety requirements
- We have experience with both flat and hillside sites
- We understand the street-only drainage requirement
Frequently Asked Questions
Your Beverly Hills Project
Call us or request a consultation.
Project Examples in Beverly Hills

Beverly Hills Grading Plan - Corner of Doheny Drive and Clifton Way showing proposed single-family residence with pool, topographic contours, drainage flow arrows, and spot elevations

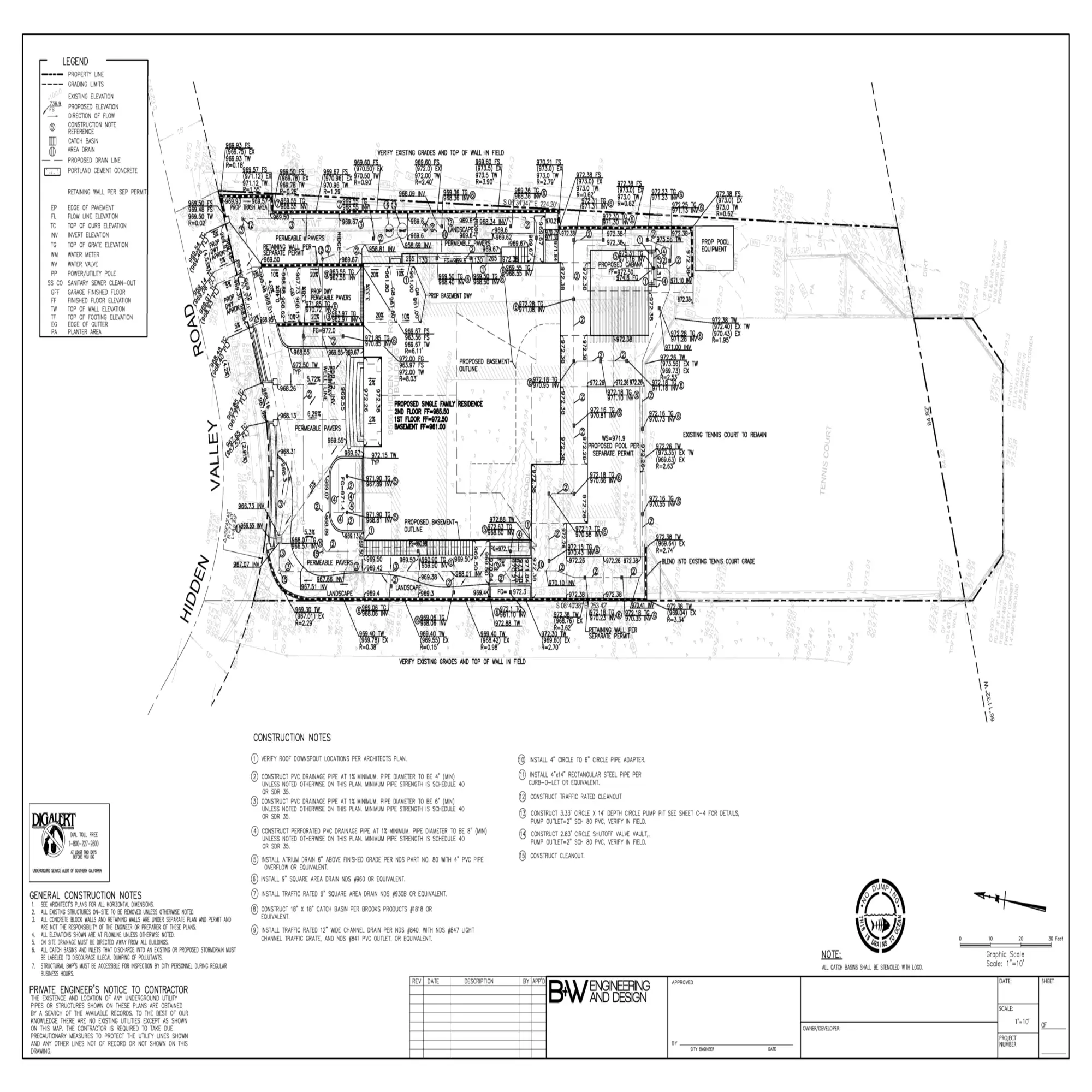
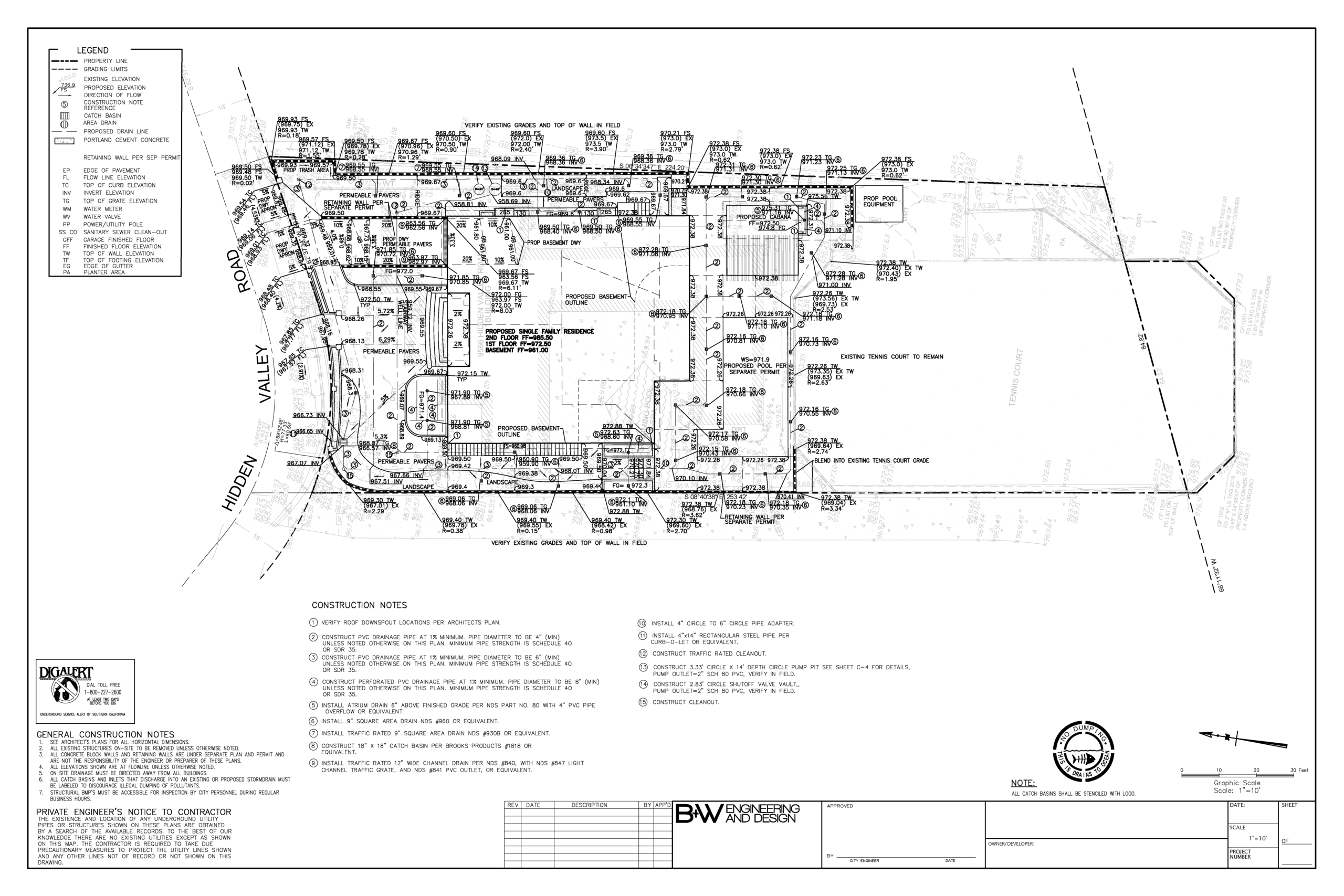
Beverly Hills Site Plan - Hidden Valley Road showing proposed residence, pool, tennis court, retaining walls with TW and FS elevations, drainage pipes, catch basins, and construction notes

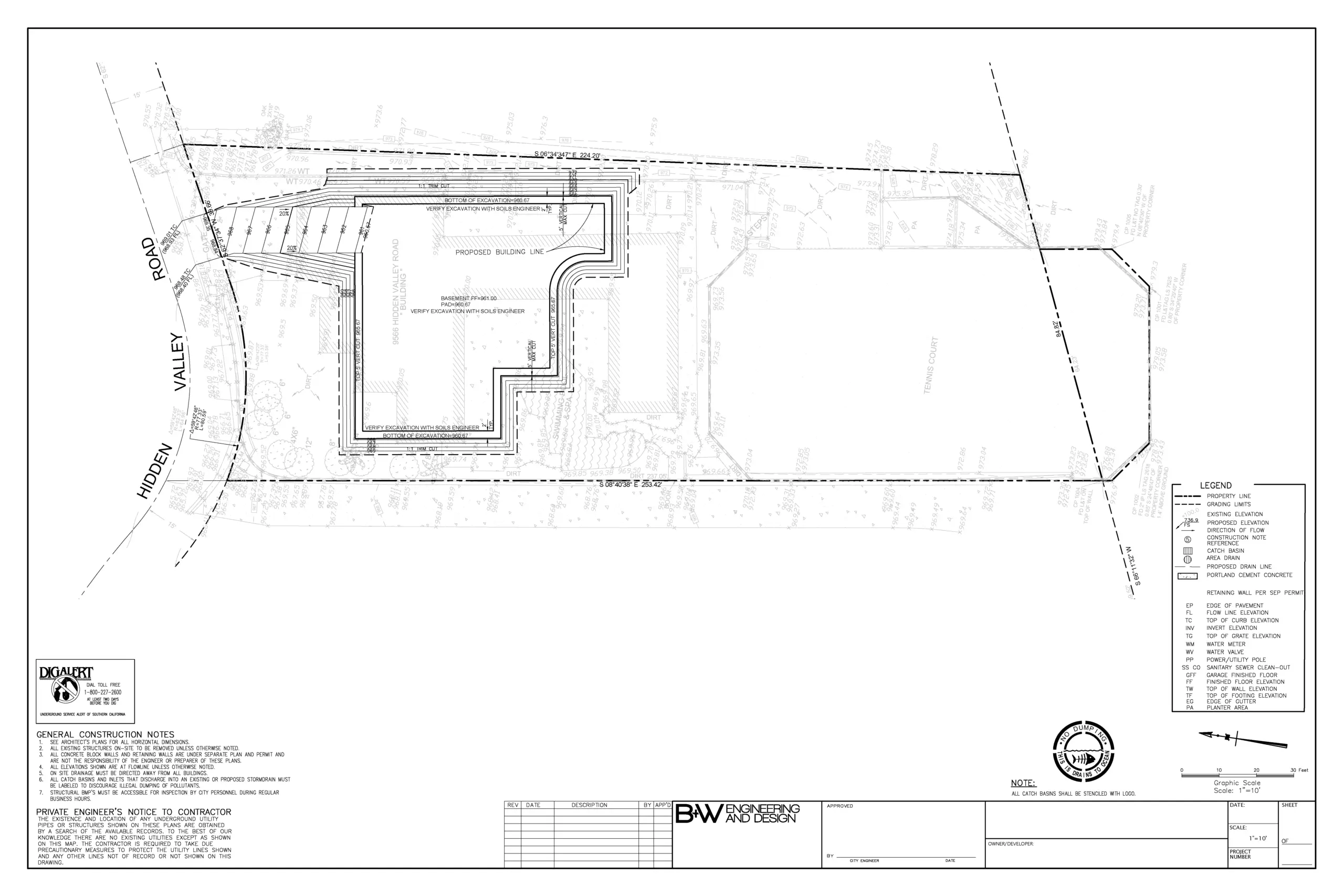
Beverly Hills Grading Plan - Hidden Valley Road showing proposed building with basement and pad elevations, excavation details, topographic contours, and drainage infrastructure
Planning a project in Beverly Hills? Give us a call.
Get Started Today