Mt Washington
Civil Engineering and Grading in Mt Washington
Mt Washington has steep hillsides and a mix of older homes and newer construction. If you are building here, you need to deal with slopes, drainage, and whatever the previous owners left behind.
We have worked on projects throughout Mt Washington, helping homeowners and architects with the civil engineering side of their builds.
Grading Plans for Sloped Sites
Every hillside site is different. We look at your specific property, figure out how water moves through it, and put together grading plans that work for what you are building. Good grading plans make the permit process smoother and prevent problems down the road.
Drainage Solutions
Water on a hillside can cause real issues if it is not handled properly. We design drainage systems that move stormwater away from your structures and neighbors. We have done this work in Mt Washington, so we know what the county looks for.
Working With Homeowners and Architects
We are used to working with homeowners directly and alongside architects. We can explain the engineering in plain language and make sure your project has everything it needs for permits and approvals.
Why Work With B+W Engineering in Mt Washington?
- We have worked on projects throughout Mt Washington
- We know how LA County reviews grading plans
- We put together documentation that makes permits easier
- We answer questions throughout your project
Your Mt Washington Project
Call us or request a consultation.
Project Examples in Mt Washington

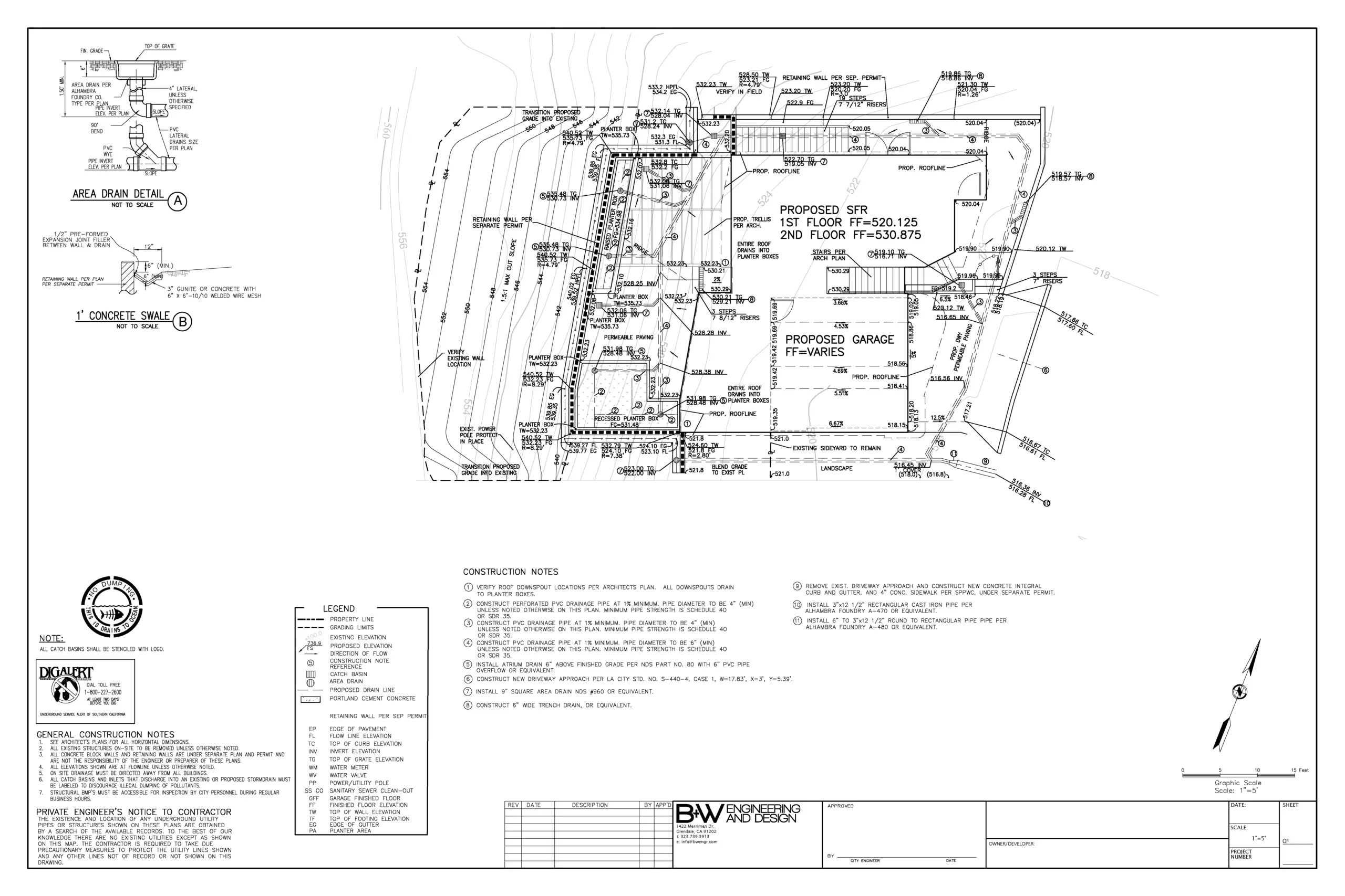
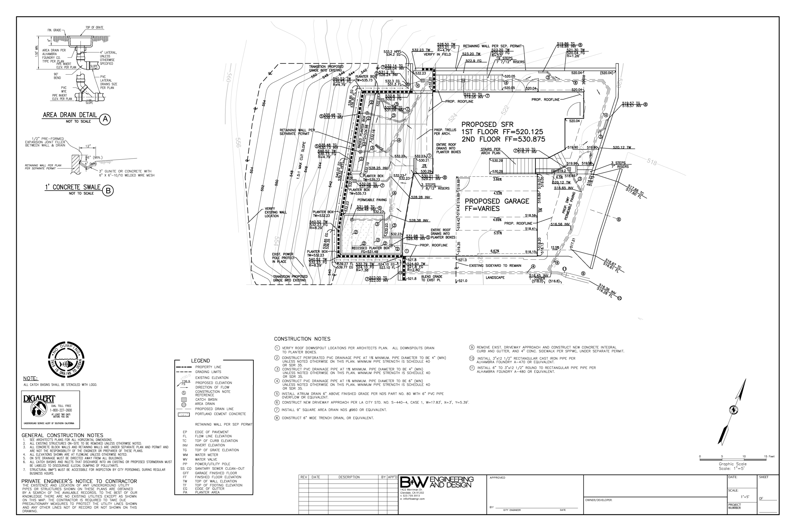
Mt Washington Grading Plan
Have a project in Mt Washington? Give us a call.
Get Started Today