Altadena

Altadena is A Hidden Gem at the Foothills of the San Gabriel Mountains.

We specialize in providing professional civil engineering and grading plan services to homeowners and architects throughout Altadena, California.

Whether you are designing a new home, undertaking a major renovation, or rebuilding after the recent Eaton Fire, our experienced team is here to guide you through every step of the engineering process.

Expert Civil Engineering Services for Altadena Projects
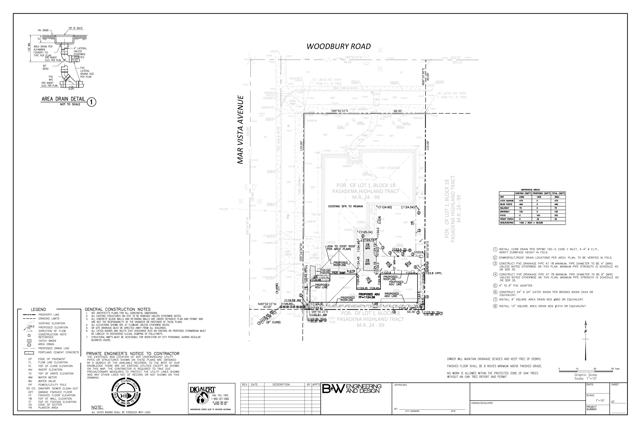
Altadena’s unique topography and hillside communities require precision engineering and thoughtful planning. We offer detailed grading plans, drainage solutions, and site development strategies tailored to the needs of your property. We work closely with architects and homeowners to create buildable, code-compliant plans that streamline the permit process and protect your investment.

Grading Plans Tailored for Altadena Terrain
Creating an effective grading plan is critical for any construction project in Altadena. At B+W Engineering, we design grading plans that not only meet Los Angeles County standards but also maximize the usability, safety, and aesthetics of your lot. Whether your property has been affected by erosion, slope instability, or fire damage, our team develops solutions that ensure long-term stability and compliance with local ordinances.

Rebuilding After the Eaton Fire
If your property was impacted by the recent Eaton Fire, we understand the challenges you are facing. B+W Engineering is committed to supporting the Altadena community during the rebuilding process. Our team offers specialized expertise in post-fire site evaluations, grading plan preparation, and civil engineering services critical to restoring your property safely and efficiently.

We help homeowners and architects navigate the county approval process, ensuring your rebuild meets all updated codes and environmental regulations.

Why Choose B+W Engineering for Your Altadena Project?

  • Deep experience with Altadena’s unique site conditions

  • Streamlined grading plans for faster permit approval

  • Clear, responsive communication with architects, homeowners, and agencies

  • Commitment to practical, cost-effective, and sustainable design solutions

Start Your Project with Confidence
If you are planning a new construction, remodel, or fire rebuild in Altadena, contact B+W Engineering today. Let our civil engineering expertise and custom grading plans help bring your vision to life — safely, sustainably, and on schedule.

 

Your Altadena Project Starts Here

From planning to completion, we’re here to help.
Call us at 323-739-3913 or click the button below to request your free consultation.