Skip to main content
Altadena Under Construction

Residential on Alta Crest Drive

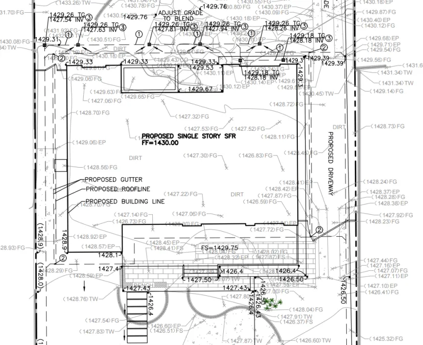
Drainage plans for a single-family residential fire rebuild following the Eaton Fire.

Drainage plan for Altadena residence showing dual lined rain gardens, trench drain, and roof gutter connections

Location

Altadena

Services

Current Phase

Under Construction

Project Overview

Single-family residential fire rebuild in Altadena following the Eaton Fire. The 0.2398-acre lot drops 13 feet from street to rear, with a single-story house, a small guest house at the rear, and a carport on the opposite rear side. This was one of our first Altadena fire rebuild projects, and it holds significance as the first approved Altadena fire rebuild drainage plan from our firm. We learned on this project that plastic-lined rain gardens could manage stormwater without requiring a full hydrology report to prove the numbers.

At the front of the property, we kept the existing walkway and a short wall, tying the new entrance into these existing elements. Downspouts along the front and west sideyard pipe into a plastic-lined rain garden that handles stormwater from the primary structure. On the east side, we preserved the existing driveway apron and matched a portion of it, extending a new driveway from front to a rear garage. The garage has a trench drain in front, piped to a second plastic-lined rain garden. The rear of the property steps down from the main house level to a deck, then a smaller lower deck, with pavers leading to the rear yard. Keeping slopes at or under 5:1 (20%) simplified the LA County approval process since the project qualified as a drainage plan rather than a full grading plan.

Site Photos

Altadena construction site featuring guest house foundation with dual rain garden drainage design
Altadena residential rebuild under construction following our drainage plan with green wall sheathing
Altadena home under construction showing ZIP System sheathing and flagstone walkway with drainage design
Altadena construction site with flagstone walkway and materials for rebuild with dual rain gardens
Altadena single-story home under construction with roof framing exposing our drainage plan design
Altadena construction site with rough soil driveway awaiting pavement following our drainage plan approval

Project Progress

August 2025

Initial Assessment

Existing conditions documented. Drainage patterns identified.

September 2025

Plans Submitted

Drainage plans submitted to LA County for review.

September 2025

Plans Approved

Drainage plans approved. Ready for construction.

Current

Under Construction

Construction has begun on the project.

Need similar services?

We are currently accepting new projects in Altadena, Pacific Palisades, and Malibu for fire rebuild engineering.

Start Your Project
Get Quote