Zip Code 91001
Altadena
Altadena Drainage Engineers Specializing in Avoiding Stormwater Sump Pumps
Many Altadena fire rebuilds are told they need a sump pump. The number given is often $30-50k extra for the pump system, gravity pipes, catch basins, and right of way construction. We take a different approach.
We look at how your site drained before the Eaton Fire using historical satellite imagery. We run hydrology reports comparing post-development flow to pre-fire flow. If your site drains the same way it always has, we present that to LA County and often avoid the pump requirement entirely.
We are currently working on grading and drainage projects throughout Altadena, helping homeowners and architects navigate the permitting process with strategies that save construction costs.
How We Avoid Sump Pumps in Altadena
LA County requires sump pumps when post-development stormwater flow exceeds what the site handled before the fire. We challenge that requirement by demonstrating the site drains the same way it did pre-fire. We analyze historical Google Earth satellite imagery to understand how water moved across your property before it was cleared. We run hydrology calculations comparing post-development Q to pre-fire Q. If the numbers show no increase in peak flow, we present a drainage plan that works without a pump. We also specify plastic lined rain gardens to improve conditions from pre-fire. These retain stormwater on site and slow runoff, which can actually improve the drainage pattern compared to before the fire.
Why LA County Requires Sump Pumps After Fire Rebuilds
After the fire, the land is cleared. That changes how water moves across the property during construction. The county wants to make sure your project does not make drainage problems worse for neighbors downhill. Once the lot is landscaped again, water will move differently than it does right now on the cleared lot. The county uses this as justification to require pumps. But if we can show the final landscaped site drains the same way it did before the fire, the requirement goes away.
When a Sump Pump Is Actually Required
Some lots have drainage patterns that genuinely require a pump, particularly those in natural drainage pockets or with significant grade changes that make gravity drainage impossible. When that happens, it is not just the pump itself. There are also gravity pipes, catch basins on the property line, and right of way construction that can add significant time and cost. County approvals for street work are separate from your building permit. We find about 95% of the Altadena lots we analyze can avoid the pump requirement by showing the site drains the same way it did before the fire.
Working With Homeowners and Architects
We work directly with homeowners and alongside architects to explain the technical details in plain terms. We coordinate with your architect to shift downspouts, adjust grades, and optimize the drainage pattern before we finalize the plan. Our goal is to get your project through LA County approval with a drainage plan that works and saves you money on construction.
Why Work With B+W Engineering in Altadena?
- We are currently working on drainage projects throughout Altadena
- We use hydrology reports to avoid expensive sump pump requirements
- We analyze historical satellite imagery to show pre-fire drainage patterns
- We specify plastic lined rain gardens to improve stormwater retention
- We have helped many Altadena families navigate post-fire permitting
Frequently Asked Questions
Your Altadena Project
Call us or request a consultation.
Project Examples in Altadena

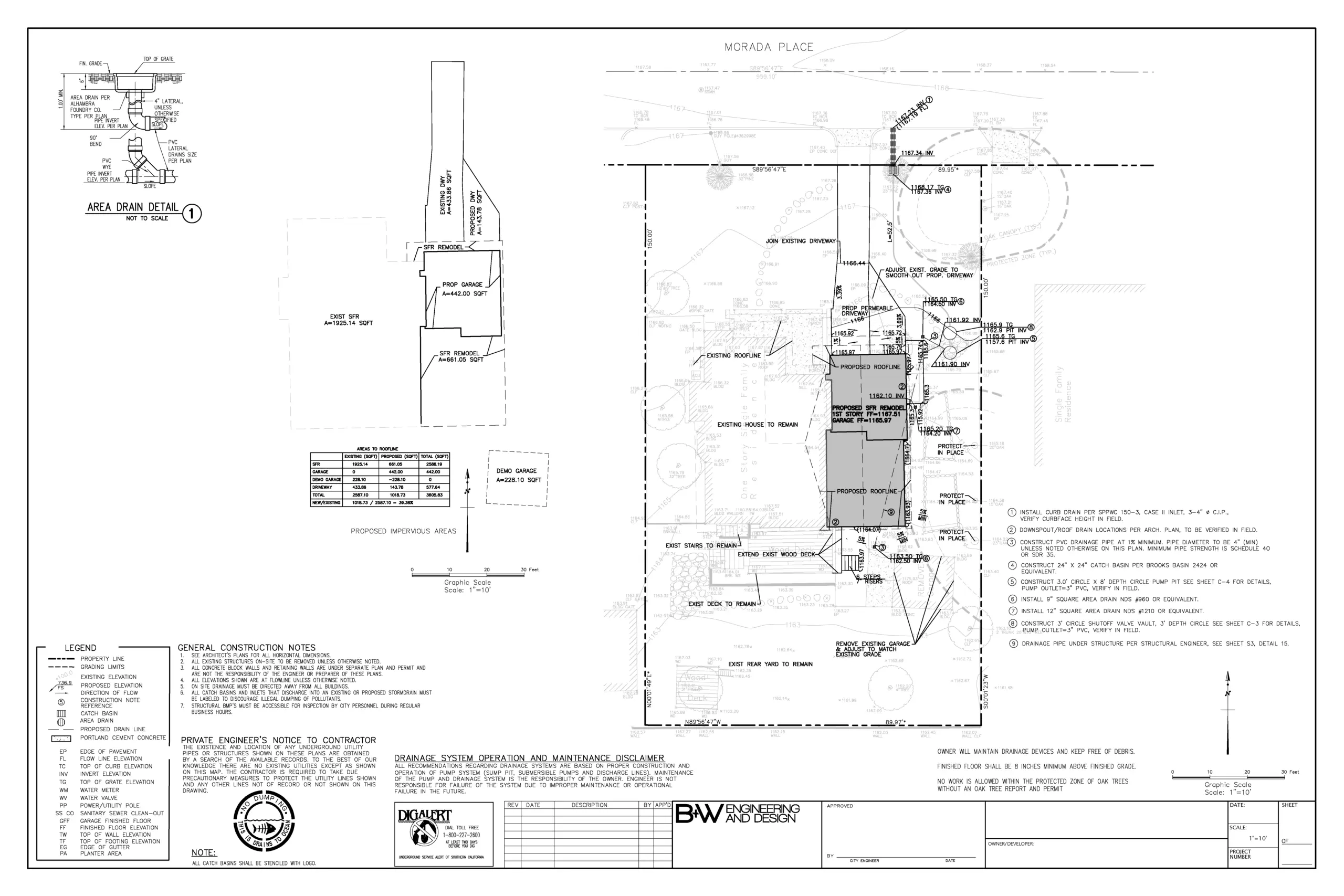
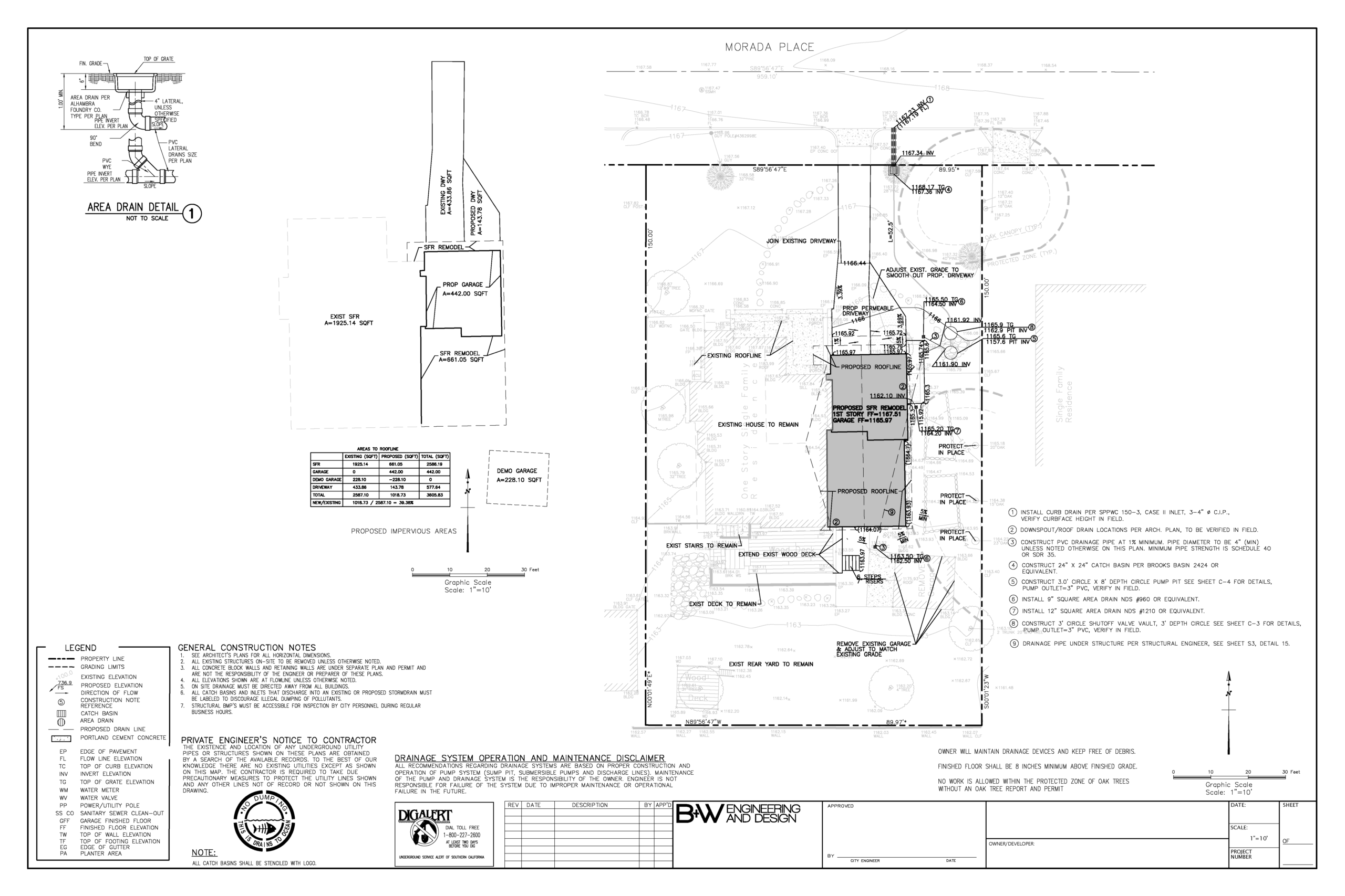
Grading and Drainage Plan - Morada Place, Altadena, showing proposed garage and remodel footprints, topography contours, impervious area calculations, and stormwater management.

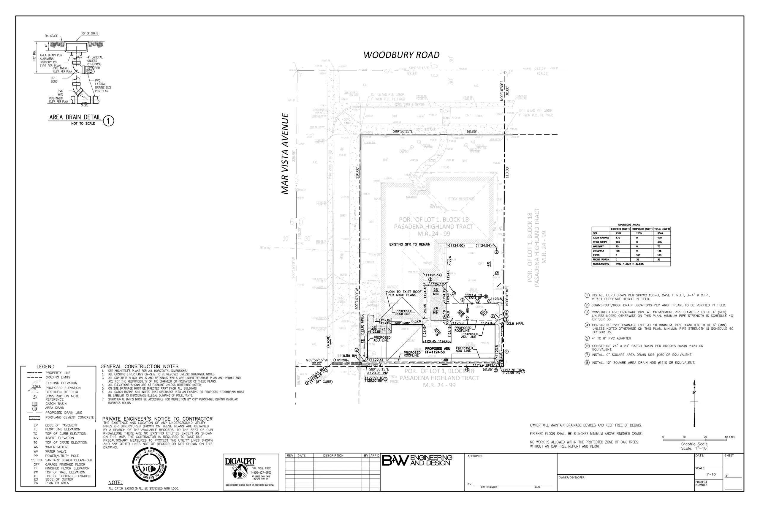
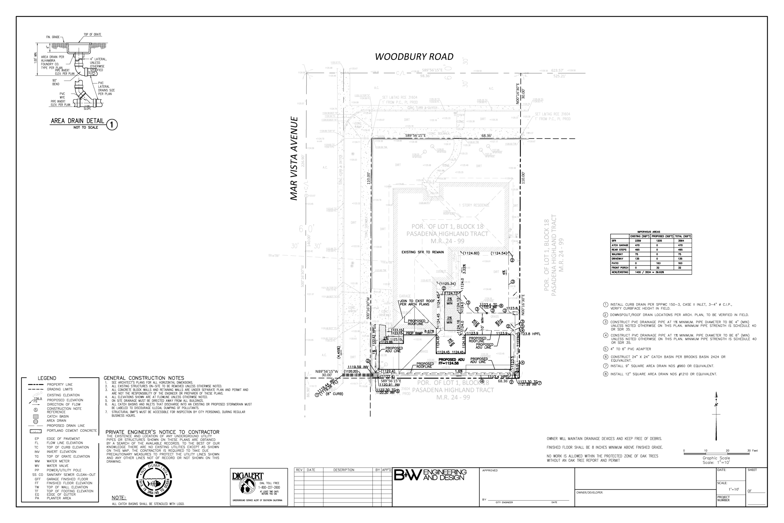
Grading and Drainage Plan - Woodbury Road and Mar Vista Avenue, Pasadena, showing ADU site development, proposed elevations, and stormwater system with drainage pipes and area drains.

Stormwater Lift Station - Altadena, showing submersible pump calculations for 50-year storm event, duplex pump system, 36-inch fiberglass wet well, and detailed specifications.

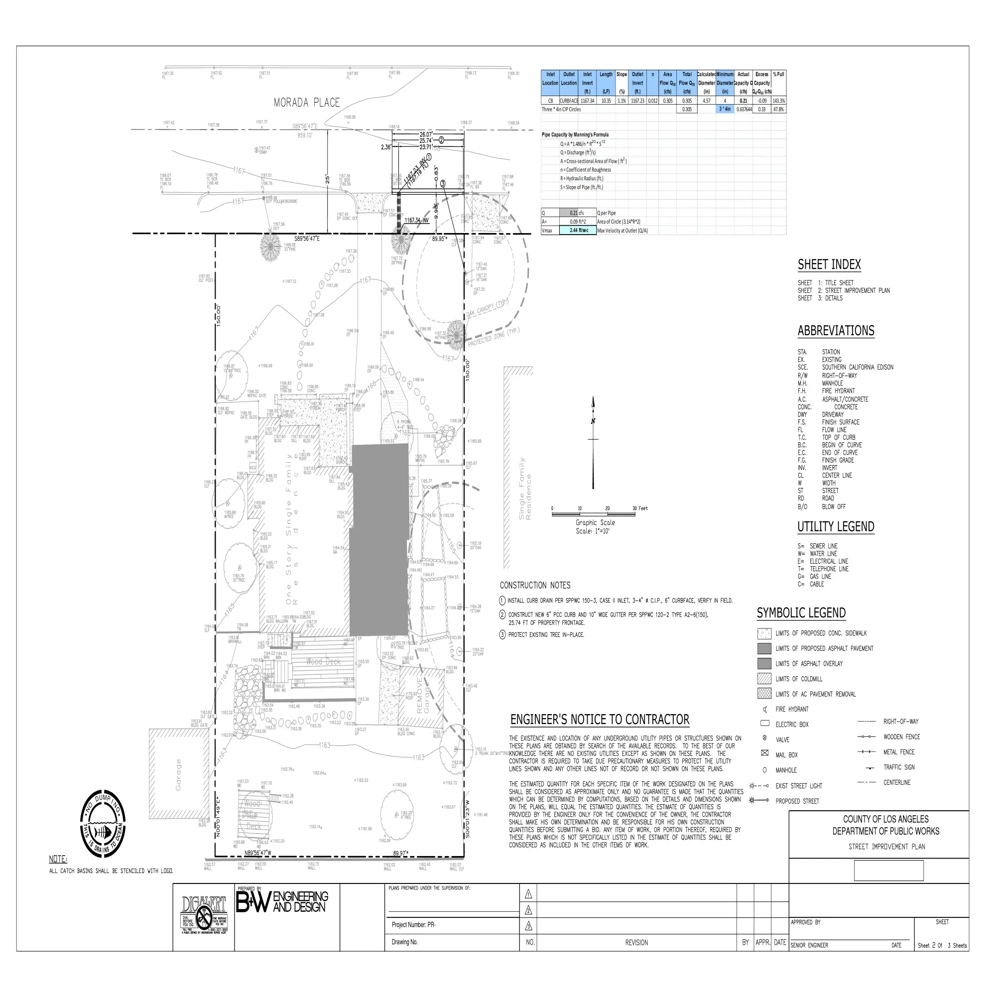
Street Improvement Plan - Morada Place, Los Angeles County, showing proposed curb, gutter, sidewalk, topographic elevations, and storm drain calculations with Manning's Formula.
Planning a project in Altadena? Give us a call to discuss your drainage options.
Get Started Today