Skip to main content
Altadena Submittal Stage

Residential on East Palm Street

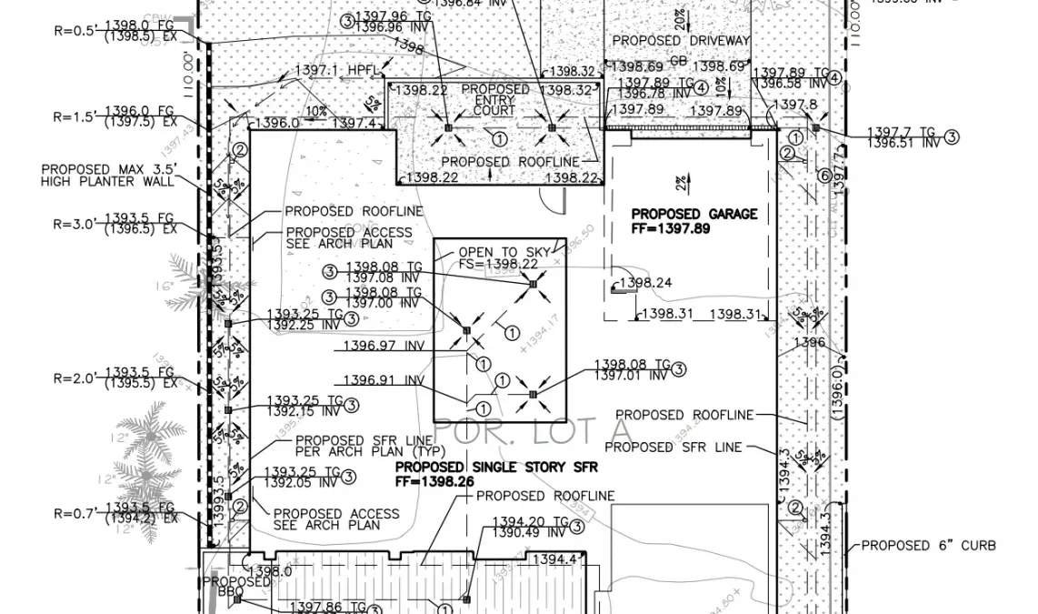
Drainage plans, hydrology report, stormwater sump pump design, and street plan for a single-family residential fire rebuild following the Eaton Fire.

Drainage plan for Altadena residential project on East Palm Street

Location

Altadena, CA

Services

  • Drainage Plans
  • Hydrology Report
  • Stormwater Sump Pump Design
  • Street Plan

Current Phase

Submittal Stage

Project Overview

Single-family residential fire rebuild in Altadena following the Eaton Fire. Initial assessment completed August 2025 with existing site conditions documented and drainage patterns identified. Given the property sits below street grade, a stormwater sump pump system was required. Drainage plans, hydrology report, sump pump design, and street plan submitted to LA County for review in September 2025.

Project Progress

August 2025

Initial Assessment

Existing conditions documented. Drainage patterns identified. Sump pump requirement determined.

Current

Submittal

Drainage plans, hydrology report, sump pump design, and street plan submitted to LA County.

Need similar services?

We are currently accepting new projects in Altadena, Pacific Palisades, and Malibu for fire rebuild engineering.

Start Your Project
323-739-3913 Get Quote