Skip to main content
Altadena Approved

Residential on Las Flores Drive

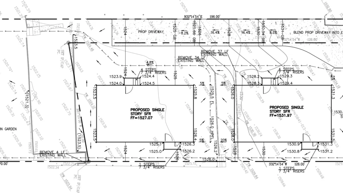
Drainage plans and hydrology report for a single-family residential fire rebuild following the Eaton Fire.

Drainage plan for Altadena residential project showing flowlines, elevations, and slope arrows

Location

Altadena, CA

Current Phase

Approved

Project Overview

Single-family residential fire rebuild in Altadena following the Eaton Fire. The 0.266-acre lot features two manufactured homes (ADUs) on a hillside property averaging 17% slope from front to rear. We set each finished floor 8" above grade at the front edge of each structure, then brought flowlines around the sideyards to connect with existing property line elevations. The site sheet flows entirely by gravity to the rear without needing area drains. The driveway ties into the existing apron at standard slope grades, eliminating the need for retaining walls. We removed most of the stepped walls that were previously dividing the site, creating a more flowing grade across the property.

Project Progress

February 2026

Initial Assessment

Existing conditions documented. Drainage patterns identified.

March 2026

Submittal

Drainage plans and hydrology report submitted to LA County for review.

March 2026

Approved

Drainage plans and hydrology report approved by LA County.

Need similar services?

We are currently accepting new projects in Altadena, Pacific Palisades, and Malibu for fire rebuild engineering.

Start Your Project
Get Quote