Skip to main content
Altadena Under Construction

Residential on Marengo Avenue

Drainage plans and hydrology report for a single-family residential fire rebuild following the Eaton Fire.

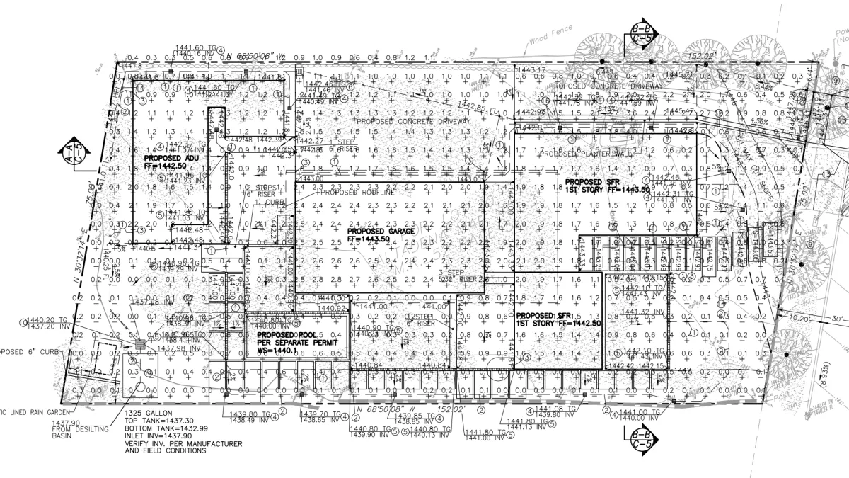
Earthwork exhibit showing 1325-gallon underground fire tank, downspouts, trench drains, and lined rain garden for Altadena residence

Location

Altadena, CA

Current Phase

Under Construction

Project Overview

Single-family residential fire rebuild in Altadena following the Eaton Fire. The 0.229-acre lot drains west to east with part of the rear lower than the rest of the property. The site includes a single-family house, a detached garage in the middle of the lot, and an ADU at the rear. A new driveway apron was shifted slightly north of the existing one, with the driveway sitting 2 feet higher than the grade around the house. Between the house and garage, the lot steps down to the rear sideyard which continues to a pool at the far rear.

This project specifically requested a large underground tank to hold water in case of another fire. We sized a 1,325-gallon underground tank at the rear of the property to capture and store fire protection water. LA County required that overflow from the tank be handled for stormwater, so we installed a plastic-lined rain garden offset 5 feet from the property line at the lowest point of the lot to accept overflow when the tank reaches capacity. A combination of downspouts and trench drains throughout the property pipe into this underground tank. A short new wall was added between the driveway and house to address grade differences. Keeping slopes at or under 5:1 (20%) meant the project qualified as a drainage plan rather than a full grading plan, which simplified LA County approval.

Site Photos

Existing driveway on Altadena lot to be relocated for new construction with underground fire tank at rear
Altadena home under construction with mountain views featuring our drainage and fire tank design
Wooden framing of new Altadena residence on sloped lot requiring drainage plan with underground tank
Altadena new home construction behind gated entrance featuring 1325-gallon underground fire tank

Project Progress

August 2025

Initial Assessment

Existing conditions documented. Drainage patterns identified.

August 2025

Plans Submitted

Drainage plans and hydrology report submitted to LA County for review.

December 2025

Plans Approved

Drainage plans and hydrology report approved. Ready for construction.

Current

Under Construction

Construction has begun on the project.

Need similar services?

We are currently accepting new projects in Altadena, Pacific Palisades, and Malibu for fire rebuild engineering.

Start Your Project
Get Quote