Skip to main content
Altadena Submittal Stage

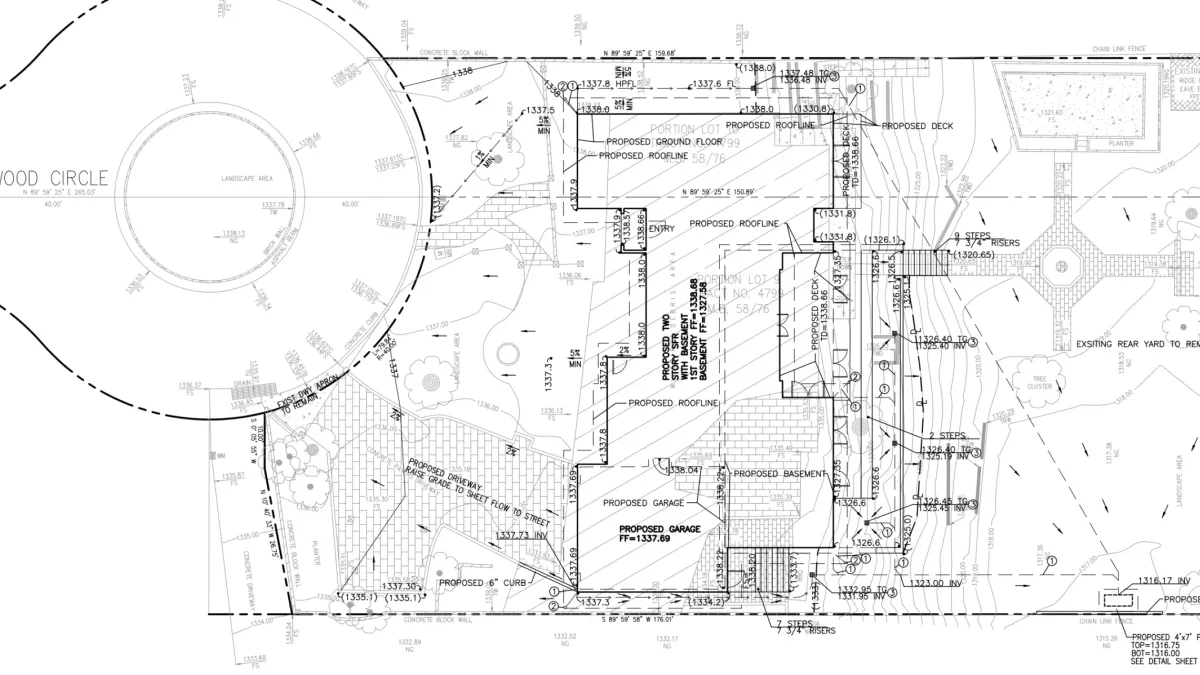
Residential on Skywood Circle

Drainage plans and hydrology report for a single-family residential fire rebuild following the Eaton Fire.

Drainage plan for Altadena residential project showing flowlines, elevations, and slope arrows

Location

Altadena, CA

Services

  • Drainage Plans
  • Hydrology Report

Current Phase

Submittal Stage

Project Overview

Single-family residential fire rebuild in Altadena following the Eaton Fire. Site assessment completed with existing conditions documented and drainage patterns identified. Drainage plans and hydrology report developed to address how stormwater moves across the lot and where it needs to go.

Project Progress

February 2026

Initial Assessment

Existing conditions documented. Drainage patterns identified.

Current

Submittal Stage

Drainage plans and hydrology report submitted to LA County for review.

Need similar services?

We are currently accepting new projects in Altadena, Pacific Palisades, and Malibu for fire rebuild engineering.

Start Your Project
323-739-3913 Get Quote