Skip to main content
Pacific Palisades Built

Marquez Terrace Residence

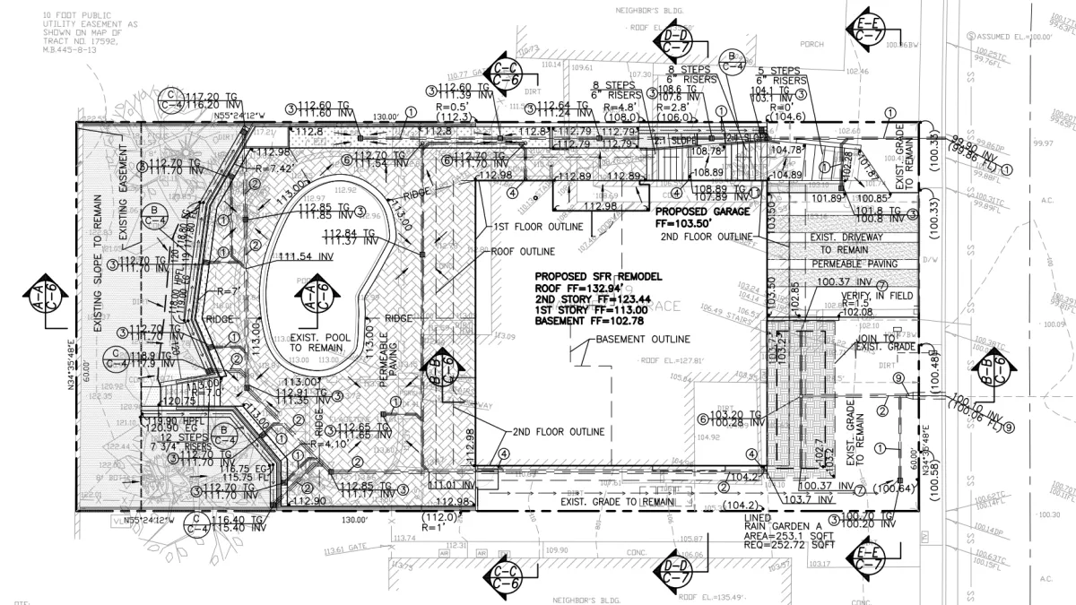
Grading plans, LID report, and excavation plans for a 2-story residence with basement. Existing pool remained with new pool deck. LID drainage to lined rain garden.

Grading and drainage plan for Marquez Terrace residence showing proposed 2-story house, basement, pool, lined rain garden, and flow arrows

Project Type

Residential Remodel

Project Overview

Marquez Terrace in Pacific Palisades. This 2-story single-family residence with basement involved a remodel where the driveway apron and driveway remained, and the existing pool in the rear was kept. A new pool deck was added around the pool.

A new retaining wall in the rear allowed the pool deck to extend further into the rear yard. We had to be aware of an existing easement in that area and kept the proposed drains out of that zone.

The LID drainage design routed downspouts and pipes to a plastic lined rain garden that was designed to look like a raised planter box. The rain garden overflowed through a pipe that ran under the sidewalk and out through the curb face on the street side. A small portion on the other side of the lot was piped to the opposite side of the front curb face.

Grading plans, LID report, and excavation plans were completed for the project. The residence has since been built and, based on recent Google satellite imagery, appears to have survived the Palisades Fire.

Project Photos

Modern home backyard with pool deck, retaining wall, and landscaping at Marquez Terrace
Three-story contemporary home on Marquez Terrace showing completed grading and landscaping
Upper floor balcony with ocean view at Marquez Terrace residence
Rooftop turf with palm tree and ocean view at Marquez Terrace
Lined rain garden designed as raised planter box with ornamental grass at Marquez Terrace
Completed home on hillside with neighborhood view at Marquez Terrace Pacific Palisades

Need similar services?

We are currently accepting new projects in Pacific Palisades, Altadena, and Malibu for residential and fire rebuild engineering.

Start Your Project
Get Quote