Skip to main content
Pacific Palisades Submittal Stage

Residential on Chapala Drive

Grading plans, excavation plans, erosion control, and stormwater sump pump design for a single-family residential fire rebuild following the Palisades Fire.

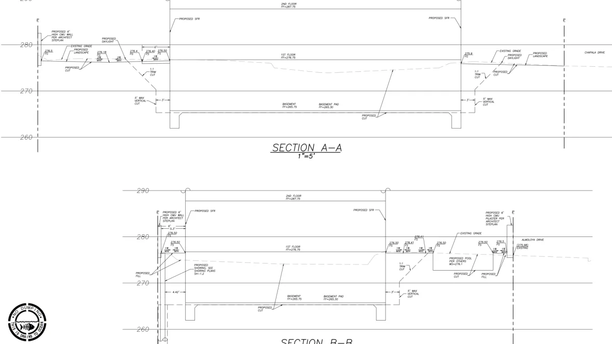
Grading and drainage plan for Chapala Drive fire rebuild showing proposed SFR, basement lightwells, pool, catch basin, and flow arrows

Project Overview

Fire rebuild on Chapala Drive in Pacific Palisades. This corner lot had only 2 feet of drop from rear to front, which created a challenge when basement lightwells and a sunken pool cover needed to sit below the street flowline grade.

The basement lightwells and pool cover required a stormwater sump pump since they cannot gravity drain. The rest of the site drains by gravity through downspouts, underground pipes, and a catch basin on the southeast side that flows out to the curb on Chapala Drive.

Grading plans, excavation plans, erosion control plans, and sump pump design developed for the non-like-for-like rebuild. First plan check took 6 months due to LA City review of pre-fire to post-fire drainage changes.

Project Progress

November 2025

Initial Assessment

Existing conditions documented. Grading requirements identified.

Current

Submittal Stage

Grading plans, excavation plans, and erosion control submitted to LADBS for review.

Need similar services?

We are currently accepting new projects in Altadena, Pacific Palisades, and Malibu for fire rebuild engineering.

Start Your Project
Get Quote