Skip to main content
Altadena Submittal Stage

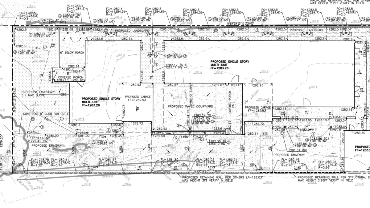
Multi-Unit Residential on Ganesha Avenue

Drainage plans, hydrology report, and street plans for a multi-unit residential fire rebuild following the Eaton Fire.

Drainage plan for Altadena multi-unit residential project showing drainage layout and street plans

Location

Altadena, CA

Services

  • Drainage Plans
  • Hydrology Report
  • Street Plans

Current Phase

Submittal Stage

Project Overview

Multi-unit residential fire rebuild in Altadena following the Eaton Fire. This sideways lot has the entrance on the West side with topography sloping North to South. There is about a 6-foot drop North to South over a 75-foot run, creating enough slope to work with for gravity drainage. The structure is longer than a typical house, requiring careful consideration of how stormwater moves across the site. We used gravity drainage wherever possible with only minor interventions needed at the lowest points. Short walls on the North and South sides balance the building in the middle and provide just enough elevation to get gravity drainage from the rear to the front. A unique challenge was the driveway apron design, which required adjusting the flowline to work around a concrete slab acting like a little bridge over the street flowline. We created a flowline that blended into the apron at 1% minimum while maintaining standard curb and gutter crossslope. The drainage ultimately flows into a plastic-lined rain garden at the rear corner of the lot. A hydrology report demonstrates post-development flows match pre-fire conditions, avoiding the need for a stormwater sump pump.

Site Photos

Overgrown vacant lot in Altadena with cracked concrete driveway and mountain views for multi-unit fire rebuild
Pre-construction site photo of Altadena multi-unit lot showing concrete driveway slab over drainage ditch
Overgrown vacant lot in Altadena with tall grass and weeds for multi-unit fire rebuild project
Altadena vacant lot with dry grass and weeds showing San Gabriel Mountains backdrop for fire rebuild

Project Progress

October 2025

Initial Assessment

Existing conditions documented. Drainage patterns identified. Topography analyzed.

Current

Submittal Stage

Drainage plans, hydrology report, and street plans submitted to LA County for review.

Need similar services?

We are currently accepting new projects in Altadena, Pacific Palisades, and Malibu for fire rebuild engineering.

Start Your Project
323-739-3913 Get Quote