Residential on Pine Street
Drainage plans and hydrology report for a single-family residential fire rebuild following the Eaton Fire.
Project Overview
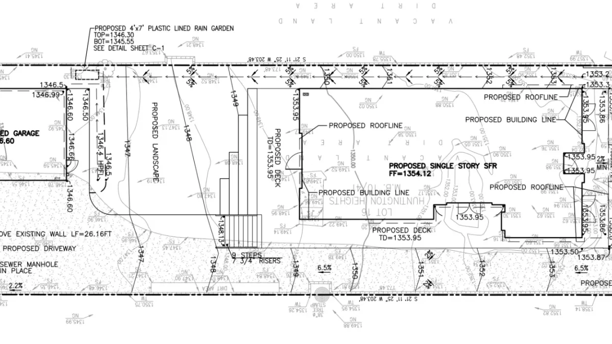
Single-family residential fire rebuild in Altadena following the Eaton Fire. Site assessment completed with existing conditions documented and drainage patterns identified. Drainage plans and hydrology report developed to address how stormwater moves across the lot and where it needs to go.
Builder: ROAM Design + Builders
Project Progress
February 2026
Initial Assessment
Existing conditions documented. Drainage patterns identified.
March 2026
Submittal
Drainage plans and hydrology report submitted to LA County for review.
April 2026
Approved
Drainage plans and hydrology report approved by LA County.
Related Blog Posts
April 27, 2026
Why Your Altadena Fire Rebuild Might Not Need a Sump Pump or LID Covenant
We got a drainage plan approved without requiring a sump pump or LID maintenance covenant. Here is the engineering behind why it worked.
March 25, 2026
Altadena Fire Rebuild Sheet Flow
How we sheet flowed an entire Altadena fire rebuild property to minimize construction costs by avoiding area drains and pipes.
Need similar services?
We are currently accepting new projects in Altadena, Pacific Palisades, and Malibu for fire rebuild engineering.
Start Your Project