Why Your Altadena Fire Rebuild Might Not Need a Sump Pump or LID Covenant
We recently got a drainage plan approved in Altadena without requiring a sump pump or a LID maintenance covenant. Here is the engineering behind why it worked.
Every few weeks we see a project where LA County plan check initially requires something, then after reviewing the engineering, removes that requirement. A recent Altadena project went through exactly that.
The county initially said the drainage design needed a LID maintenance covenant. We explained why it did not. Plan check agreed and removed the requirement.
Here is the engineering behind why it worked.
What a LID Covenant Actually Requires
First, what are we talking about when we say LID covenant?
LID stands for Low Impact Development. LA County requires LID analysis on many projects to make sure stormwater is being managed responsibly, per the 2025 LA County LID Ordinance. When a project triggers full LID requirements, it often comes with a maintenance covenant that gets recorded against your property.
This covenant is a legal document. It commits the property owner to ongoing maintenance of stormwater management features. It typically requires periodic inspections and documentation sent to the county. It stays with the property when you sell.
For some projects, this is appropriate. But for many Altadena fire rebuilds, there is a way to design the drainage that avoids triggering LID requirements in the first place.
The Key Question: Does the Site Drain the Same Way It Did Before the Fire?
After the Eaton Fire, LA County became more cautious about drainage. They want to make sure new construction does not create problems for neighboring properties downhill.
The concern is valid. When land is cleared, water behaves differently than when it was covered with vegetation. The county wants to see how your project handles that change.
The key question is not just about what happens on your property now. It is about whether your site drains the same way it did before the fire.
We document this through hydrology analysis. We look at the pre-fire conditions of your site, model the post-development drainage pattern, and calculate whether the peak flow rates and volumes have changed.
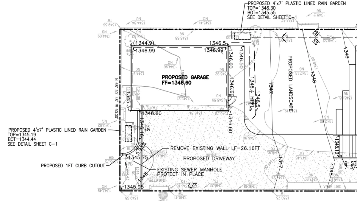
How Plastic Lined Rain Gardens Work (And Why They Are Not LID)
When we design drainage for Altadena fire rebuilds, we often include rain gardens. But not all rain gardens are the same.
LID rain gardens are designed to infiltrate stormwater into the ground. They are meant to let water soak in and reduce runoff at the source. This is good for the environment, but it requires ongoing maintenance to ensure the infiltration capacity does not degrade over time.
The rain gardens we typically specify are different. They are plastic lined. They store stormwater volume during a storm and release it once the storage capacity is reached. They are not infiltrating into the ground.
This matters for two reasons.
First, because they are not infiltrating, they do not trigger the same maintenance concerns that LID devices do. There is no infiltration capacity that can become clogged or fail over time.
Second, because we are storing volume rather than infiltrating, we can show the site is handling water the same way it did before the fire. The pre-fire drainage pattern had water sheet flowing across the surface and eventually making its way off the property. The rain gardens replicate that behavior at a small scale.
The 50% Impervious Threshold
LID requirements in LA County are typically triggered when a project exceeds certain thresholds for impervious surface area. One key threshold is when post-development impervious surface increases by more than 50% compared to pre-development conditions.
For most Altadena fire rebuilds, this is where we focus our analysis. If we can show that the project does not exceed that threshold, LID requirements generally do not apply.
We document this in the hydrology report with calculations showing pre-fire and post-fire runoff volumes and impervious surface percentages. If the numbers show the site is still within acceptable ranges, we present that to plan check.
What the Hydrology Numbers Look Like
Here is an example of what this looks like in practice.
For one recent Altadena project, the pre-fire 24-hour clear runoff volume was 2,465 cubic feet. After the fire and proposed development, the post-development 24-hour clear runoff volume was 2,252 cubic feet.
The post-development volume is actually less than the pre-fire volume. This is partly because some of the previous impervious surface (like a pool or previous structures) is being removed and replaced with landscape area.
When the numbers work out this way, we can show the site drains the same way it always has. LA County reviews the hydrology report and if the calculations are sound, they often remove the sump pump or LID requirements that were initially imposed. Our hydrology calculations use LA County HydroCalc v1.0.3 to verify pre-fire and post-development runoff volumes.
Why Sheet Flow vs. Concentrated Flow Matters
Another factor plan check looks at is whether drainage is being handled as sheet flow or concentrated flow.
Sheet flow is water spreading out across the surface in a thin layer, following the natural slope of the land. This is how water typically moves across an undeveloped hillside.
Concentrated flow is water being collected and channeled into specific points, like a catch basin or a pipe. Concentrated flow can create erosion problems downstream and typically requires more engineering controls.
When we design drainage, we try to maintain sheet flow wherever possible. The rain gardens are positioned to accept sheet flow from the surrounding landscape and store it temporarily, then release it in a controlled manner that continues the sheet flow pattern off the property.
If the overflow from a rain garden is going to be sheet flow (spreading out across landscape rather than concentrating into a pipe or channel), that is a different engineering situation than if the overflow is concentrated at a single point.
Plan check reviews this carefully. When we can show the design maintains sheet flow and follows the pre-fire drainage pattern, that often resolves their concerns about downstream impacts.
What This Means for Your Altadena Rebuild
Not every project can avoid a sump pump or LID covenant. Some lots have genuine drainage challenges that require engineering solutions.
But many Altadena lots can avoid these requirements if the drainage plan is designed correctly from the start. Our Altadena drainage plans page covers our approach for fire rebuilds. It starts with understanding pre-fire hydrology, designing to maintain the same drainage pattern, and being able to demonstrate that to plan check with clear calculations.
The earlier in the process this analysis happens, the better. If you are already mid-plan check and being told you need a sump pump, it is still worth asking the question about whether the hydrology supports an alternative approach.
We look at a lot of Altadena lots. Many of them can avoid a sump pump by demonstrating the site drains the same way it did before the fire. The same principles apply to LID covenants.
If you are working through this on your Altadena rebuild, feel free to reach out.
For your Altadena fire rebuild drainage plan
We get asked a lot about whether a project needs a sump pump, LID requirements, grading plan, or drainage plan. The short answer is it depends on your site, your pre-fire conditions, and what your engineering actually shows.
If you are in Altadena and going through the fire rebuild process, we can look at your specific site and tell you what LA County will likely require before you spend money on designs that might not pass plan check.
Here’s how it works with us. Once your surveyor sends over the field survey and your architect sends over the proposed site plan, we design the drainage plan and hydrology report if required. Your architect or builder then submits those to LA County with the rest of your building permit package. We handle the technical engineering and stay in contact through plan check comments until it clears.
For Altadena projects, our Altadena drainage plans page covers what we do, typical costs, and how long it takes.
No obligation. Just useful information if you are early in the process and trying to figure out what you actually need.
Frequently Asked Questions
Related Portfolio Project
Residential on Pine Street
Drainage Plans and Hydrology Report for fire rebuild.
View the full projectYou Might Also Like
Rebuilding Altadena
Altadena first lot since the Eaton Fire, was sold recently on Calaveras Street for $100k above listing. Location and price wise this seems low to me, but also the buyer will have to wait a while before anything can happen.
Altadena and SB9
Was doing some networking this week and getting to chit chat with Architects and developers about the fires has been most interesting.
Los Feliz Grading
Looking at an interesting plan in Los Feliz with a slight addition and a nice ADU addon. At first glimpse everything is trying to be tied into the existing topography.