Skip to main content
Altadena Under Construction

Residential on West Mariposa Street

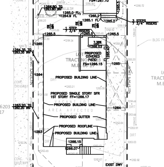
Drainage plans for a single-family residential fire rebuild following the Eaton Fire.

Drainage plan for Altadena residential project

Location

Altadena, CA

Services

Current Phase

Under Construction

Project Overview

Single-family residential fire rebuild in Altadena following the Eaton Fire. Site assessment completed with existing conditions documented and drainage patterns identified. Drainage plans in development to address how stormwater moves across the lot and where it needs to go. Completed April 2026.

Architecture

Mutu Architecture

View Architect

Project Progress

April 2026

Initial Assessment

Existing conditions documented. Drainage patterns identified.

April 2026

Drainage Plans in Development

Drainage plans being prepared.

April 2026

Completed Plans

Drainage plans completed and delivered.

April 2026

Under Construction

Project in progress.

Site Photos

Altadena construction site with disturbed earth, portable toilet, and yellow power pole
Yellow Caterpillar wheel loader on dirt construction site with mountain backdrop
Site preparation with heavy machinery tire tracks and stucco building under construction
Yellow skid steer loader clearing land with worker doing dust control
Construction site showing foundation formwork, site grading, and plumbing drainage pipes with rebar materials and wooden boards for concrete forms
Active construction site featuring excavated foundation trenches and wooden concrete formwork with wooden stakes and boards defining the future building footprint, caution tape and orange rebar safety caps visible

Need similar services?

We are currently accepting new projects in Altadena, Pacific Palisades, and Malibu for fire rebuild engineering.

Start Your Project
Get Quote