Second Wapello Street Drainage Plan - Existing Conditions and Proposed Design
Our second drainage plan for a Wapello Street property in Altadena. Looking at the existing topography with an excavated house pad, downslope site, and existing pool to work around.
We received the retainer on a Wapello Street property in Altadena with the site plan and survey already in hand. This was our second project on this street, so we had some familiarity with the area. Looking at the existing topography, we could see the old house had been excavated out in the middle of the lot with the garage sitting at the rear of the downslope. The existing pool would remain part of the design.
Existing Conditions
The site is downsloping, which always adds complexity to drainage planning. We needed to understand exactly where the water was going to flow before we could propose any changes. The excavated house pad in the center created a bowl effect, and the existing pool at the front meant we were going to drain backwards.
The existing conditions showed us the slope running from front to rear, with the garage sitting below the main grade. We had to figure out a proposed drainage pattern that worked with what was already there.
Proposed Design
The proposed house sits tighter to the street grade but still below it, which meant we had to drop the driveway. The existing driveway was typically 10%, which we often see. But due to the new house finished floor elevation, we only needed 2%. That 2% slope created a retaining wall along the neighbor’s property line.
We were able to match the house and deck into the existing pool deck, which helped keep the transitions clean. From there, we brought a flowline from the front to the driveway and let sheet gravity flow down the steps to the rear of the property. All drainage sheet flows to two plastic lined rain gardens that handle the stormwater on site.
The proposed model shows how we threaded the drainage through the existing constraints. The house sits on a crawlspace, the garage is on grade, and the rear deck sits above existing grade. The rear yard grade remains similar to what was there before.
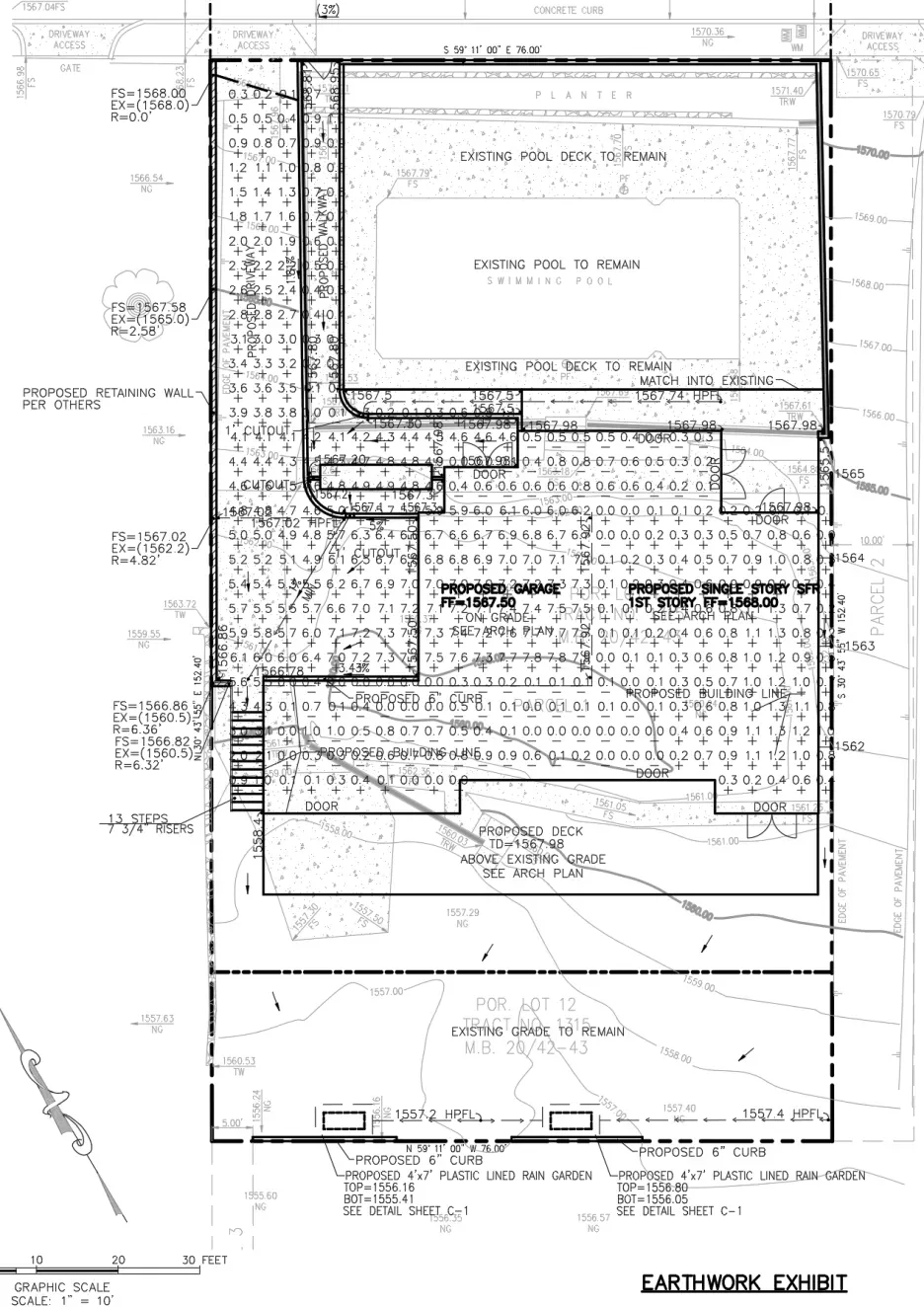
Earthwork Exhibit
The final design shows the earthwork cut and fill numbers. The overall site layout remains similar to existing conditions, but the garage is now on grade and the house has a crawlspace. The rear deck sits above existing grade, and the rain gardens handle the drainage without needing a sump pump or other mechanical systems.
For this Altadena fire rebuild, the two rain gardens helped keep more stormwater onsite than pre-fire conditions. This storage based approach meant we did not need expensive stormwater sump pumps, which should save the client significant construction costs.
If you have a downslope property in Altadena and need drainage plans, get in touch. We can help you work through the existing conditions and find a drainage solution that works.
Frequently Asked Questions
Related Portfolio Project
Residential on Wapello Street
Drainage Plans and Hydrology Report for downslope fire rebuild.
View the full projectYou Might Also Like
Rebuilding Altadena
Altadena first lot since the Eaton Fire, was sold recently on Calaveras Street for $100k above listing. Location and price wise this seems low to me, but also the buyer will have to wait a while before anything can happen.
Altadena and SB9
Was doing some networking this week and getting to chit chat with Architects and developers about the fires has been most interesting.
Grading and Drainage Solutions for Altadena's Distinct Landscape
Altadena, tucked beneath the San Gabriel Mountains, is a charming Los Angeles County community known for its scenic beauty and charming homes. Unlike the steep hillsides of nearby areas, Altadena's flatter terrain presents its own set of grading and drainage challenges.